條形開關的參數型號介紹
1.條形開關適用范圍
條形開關適用于交流額定電壓660V及以下,交流160A~630A,額定交流頻率5OHz。
工業企業配電系統中,主要用于有高短路電流的配電電路和電動機電路中,可供不頻繁手動接通和分斷電路及隔離電源用,并能對交流電路短路保護。
本開關不適合作為起動和斷開單臺電動機開關之用。
產品符合IEC60947-3:GB14048.3標準。
2.條形開關型號及其含義
3.條形開關正常的運用、裝置條件
3.1周圍空氣溫度不超越+40℃,且其24h內的平均溫度值不超越十35℃。下限溫度不低于-5℃;3.2裝置地址的海拔不超越2000米:
3.3周圍大氣環境的污染等級3級;
3.4濕度最高溫度為+40℃時,空氣的相對濕度不超越50%,在較低溫度時答應有較高的相
對濕度,如+20℃可達90%;
3.5 無雨雪侵襲和沖擊震動及顯著搖動的當地。
3.6 開關應垂直裝置。
4.條形開關結構及特征
開關由底座、基座、蓋、手柄及防護罩等部分組成。NT系列熔斷體裝置在蓋上,并直接作為動觸頭刀片運用:手柄沿底座的支點呈扇形旋轉運動,將蓋連同熔斷器一起作分斷、合閘,有較大的空間距離和顯著的斷開點,滿意隔離開關要求。基座與底座能方便的拆開,便于基座安全可靠地裝置在匯流排上。底座上裝有滅弧柵,確保開關分斷才能。
5.條形開關主要參數
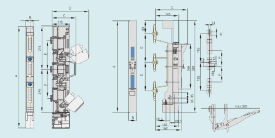
6.條形開關外型及安裝尺寸
